Plan Pricing

$0

LITTLEBROOK

M1601A2F-0R
  • Total Area:1600 Sq. Ft.
  • Garage Area:410 Sq Ft
  • Garage Size:2
  • Stories:2
  • Bedrooms:3
  • Full Baths:2
  • Half Baths:1
  • Width:32'-6"
  • Depth:35'-0"
  • Height:25'-3"
  • Foundation:Crawl Space
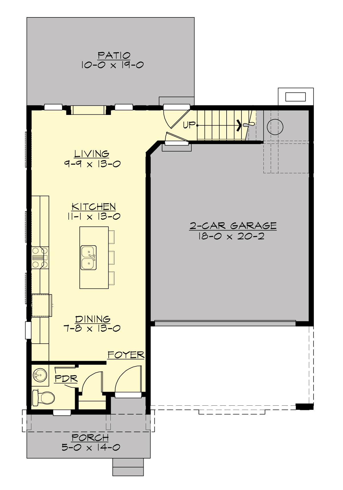
PLAN DETAILS FOR THE LITTLEBROOK - PLAN M1601A2F-0R
Area Summary
  • Total Area:1600 Sq. Ft.
  • Main Floor:535 Sq. Ft.
  • Upper Floor:1065 Sq. Ft.
  • Garage Floor:410 Sq. Ft.
General Information
  • Stories:2
  • Width:32'-6"
  • Depth:35'-0"
  • Height:25'-3"
Architectural Style
  • Contemporary
  • Modern
  • Prarie
Number of Rooms
  • Bedrooms:3
  • Full Baths:2
  • Half Baths:1
Garage
  • Garage Size:2
  • Garage Door Location:Front
Roof Pitches
  • Primary:8:12
  • Secondary:4:12
Wall Heights
  • Main:9'-0"
  • Upper:9'-0"
Foundation Type
  • Crawl Space
Roof Framing
  • Trusses
Floor Load
  • Live (lbs):40 PSF
  • Dead (lbs):10 PSF
Roof Load
  • Live (lbs):25 PSF
  • Dead (lbs):15 PSF
  • Wind:85 MPH
Design Features
  • Den/Office
  • Front Porch
  • Great Room
  • Laundry Room @ & Upper Floor
  • Master Bedroom @ Upper Floor Front
  • Contemporary Home Plans
  • Modern Home Plans
  • Prairie Home Plans
  • Narrow Lot House Plans
Please enter the zip code of your building site, then select the Go! button to view pricing information for this house plan.

Recent View

© 2023 Architects Northwest All Rights Reserved Powered By: Visualwebz