Plan Pricing

$0

ELSEE

M3275D2F-0
  • Total Area:3622 Sq. Ft.
  • Garage Area:672 Sq Ft
  • Garage Size:2
  • Stories:2
  • Bedrooms:4
  • Full Baths:4
  • Width:72'-6"
  • Depth:40'-0"
  • Height:28'-0"
  • Foundation:Crawl Space
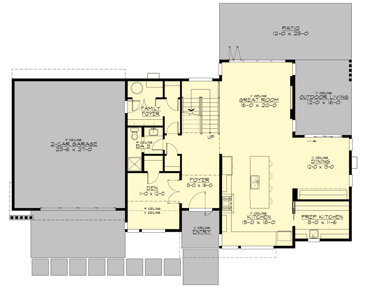
PLAN DETAILS FOR THE ELSEE - PLAN M3275D2F-0
Area Summary
  • Total Area:3622 Sq. Ft.
  • Main Floor:1524 Sq. Ft.
  • Upper Floor:2098 Sq. Ft.
  • Garage Floor:672 Sq. Ft.
General Information
  • Stories:2
  • Width:72'-6"
  • Depth:40'-0"
  • Height:28'-0"
Architectural Style
  • Contemporary
  • Modern
  • Prarie
Number of Rooms
  • Bedrooms:4
  • Full Baths:4
Garage
  • Garage Size:2
  • Garage Door Location:Front
Roof Pitches
  • Primary:4:12
Wall Heights
  • Main:11'-0"
  • Upper:11'-0"
Foundation Type
  • Crawl Space
Roof Framing
  • Trusses
Floor Load
  • Live (lbs):40 PSF
  • Dead (lbs):10 PSF
Roof Load
  • Live (lbs):25 PSF
  • Dead (lbs):15 PSF
  • Wind:85 MPH
Design Features
  • New Plans
  • Bonus Space @ & Upper Floor
  • Den/Office
  • Rear Porch
  • Great Room
  • Laundry Room @ & Upper Floor
  • Master Bedroom @ Upper Floor Rear
  • Contemporary Home Plans
  • Modern Home Plans
  • Prairie Home Plans
  • View Lot (Rear) Plans
  • Wide Lot House Plans
Front Rendering

Joystar

M3275B2F-0
  • Total Area:3570 Sq. Ft.
  • Stories:2
  • Bedrooms:4
  • Full Baths:4
Front Photo

Celina Creek

M3275C4FT-0R
  • Total Area:3786 Sq. Ft.
  • Stories:2
  • Bedrooms:4
  • Full Baths:3
Front Photo

Celina

M3275A2F-0
  • Total Area:3265 Sq. Ft.
  • Stories:2
  • Bedrooms:4
  • Full Baths:3
Please enter the zip code of your building site, then select the Go! button to view pricing information for this house plan.

Recent View

Front Rendering

Callahan

M4289A3S-0
  • Total Area:4289 Sq. Ft.
  • Stories:2
  • Bedrooms:4
  • Full Baths:4
© 2023 Architects Northwest All Rights Reserved Powered By: Visualwebz