Plan Pricing

$0

SOPRANO

M3720A2F-0
  • Total Area:3721 Sq. Ft.
  • Garage Area:460 Sq Ft
  • Garage Size:2
  • Stories:2
  • Bedrooms:5
  • Full Baths:4
  • Half Baths:1
  • Width:64'-6"
  • Depth:57'-6"
  • Height:25'-6"
  • Foundation:Crawl Space
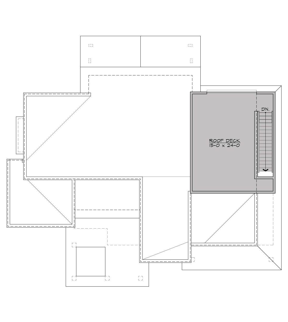
PLAN DETAILS FOR THE SOPRANO - PLAN M3720A2F-0
Area Summary
  • Total Area:3721 Sq. Ft.
  • Main Floor:1771 Sq. Ft.
  • Upper Floor:1950 Sq. Ft.
  • Garage Floor:460 Sq. Ft.
General Information
  • Stories:2
  • Width:64'-6"
  • Depth:57'-6"
  • Height:25'-6"
Architectural Style
  • Contemporary
  • Modern
  • Northwest
Number of Rooms
  • Bedrooms:5
  • Full Baths:4
  • Half Baths:1
Garage
  • Garage Size:2
  • Garage Door Location:Front
Roof Pitches
  • Primary:1:12
Wall Heights
  • Main:10'-0"
  • Upper:9'-0"
Foundation Type
  • Crawl Space
Roof Framing
  • Trusses
Floor Load
  • Live (lbs):40 PSF
  • Dead (lbs):10 PSF
Roof Load
  • Live (lbs):25 PSF
  • Dead (lbs):15 PSF
  • Wind:85 MPH
Design Features
  • New Plans
  • Bonus Space @ & Upper Floor
  • Den/Office
  • Rear Porch
  • Great Room
  • Laundry Room @ & Upper Floor
  • Master Bedroom @ Upper Floor Rear
  • Contemporary Home Plans
  • Modern Home Plans
  • Northwest Floor Plans
  • View Lot (Rear) Plans
  • Wide Lot House Plans
Please enter the zip code of your building site, then select the Go! button to view pricing information for this house plan.

Recent View

Front Rendering

CeeCee

M3205D2FU-0DB
  • Total Area:3865 Sq. Ft.
  • Stories:3
  • Bedrooms:4
  • Full Baths:5
© 2023 Architects Northwest All Rights Reserved Powered By: Visualwebz