Plan Pricing

$0

RYE CREST

M2612A3F-0
  • Total Area:2612 Sq. Ft.
  • Garage Area:656 Sq Ft
  • Garage Size:3
  • Stories:2
  • Bedrooms:4
  • Full Baths:2
  • Half Baths:1
  • Width:60'-0"
  • Depth:59'-0"
  • Height:25'-0"
  • Foundation:Crawl Space
PLAN DETAILS FOR THE RYE CREST - PLAN M2612A3F-0
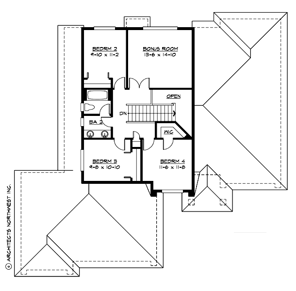
Area Summary
  • Total Area:2612 Sq. Ft.
  • Main Floor:1756 Sq. Ft.
  • Upper Floor:856 Sq. Ft.
  • Garage Floor:656 Sq. Ft.
General Information
  • Stories:2
  • Width:60'-0"
  • Depth:59'-0"
  • Height:25'-0"
Architectural Style
  • Contemporary
  • Northwest
  • Traditional
Number of Rooms
  • Bedrooms:4
  • Full Baths:2
  • Half Baths:1
Garage
  • Garage Size:3
  • Garage Door Location:Front
Roof Pitches
  • Primary:7:12
Wall Heights
  • Main:8'-0"
  • Upper:8'-0"
Foundation Type
  • Crawl Space
Roof Framing
  • Trusses
Floor Load
  • Live (lbs):40 PSF
  • Dead (lbs):10 PSF
Roof Load
  • Live (lbs):25 PSF
  • Dead (lbs):15 PSF
  • Wind:85 MPH
Design Features
  • Bonus Space @ & Upper Floor
  • Den/Office
  • Great Room
  • Laundry Room @ Main Floor
  • Master Bedroom @ Main Floor Rear
  • Contemporary Home Plans
  • Northwest Floor Plans
  • Traditional House Plans
  • Small House Plans
  • View Lot (Rear) Plans
Front Exterior

MacKenzie

M4035A3S-0
  • Total Area:4035 Sq. Ft.
  • Stories:2
  • Bedrooms:4
  • Full Baths:3
Please enter the zip code of your building site, then select the Go! button to view pricing information for this house plan.

Recent View

Front Rendering

Walnut Grove

T1735B2F-0
  • Total Area:1735 Sq. Ft.
  • Stories:2
  • Bedrooms:3
  • Full Baths:2
Front Exterior

Avalon

M2520A3FT-0
  • Total Area:2520 Sq. Ft.
  • Stories:2
  • Bedrooms:3
  • Full Baths:2
© 2023 Architects Northwest All Rights Reserved Powered By: Visualwebz